MAISON NEUVE À SAINT BRICE COURCELLES
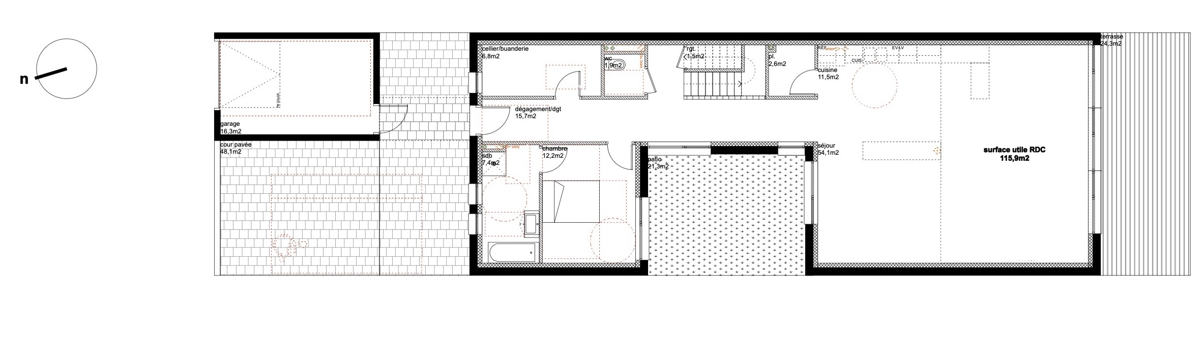
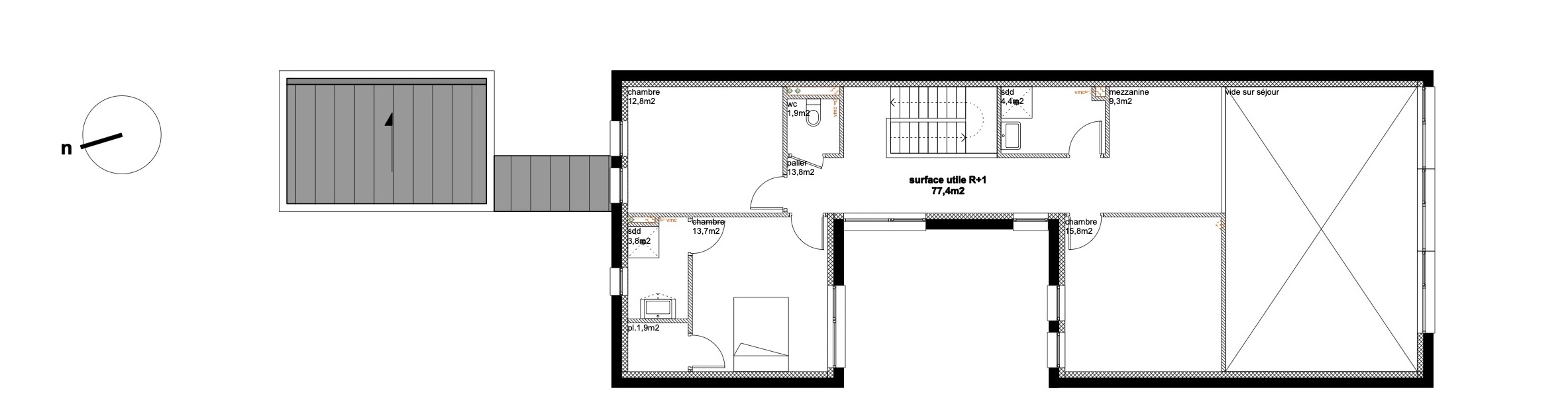
À Saint Brice Courcelles, une maison type « patio » a trouvé sa place pour accueillir une famille touchée par le handicap. Les volumes sont simples et lumineux, les circulations sont facilitées, la relation au jardin privilégiée. La maison profite d’un ensoleillement idéal pour optimiser le réchauffement de l’air intérieur en hiver et mi-saison via de grandes baies. La ventilation naturelle transversale permet de décharger l’air chaud en période caniculaire.
Surface : 190m2
RT 2012














No items found.